DSZ44H、DSZ41H、DSZ944H、DSZ941H水封閘閥、水封電動閘閥概述:
主要特點及用途
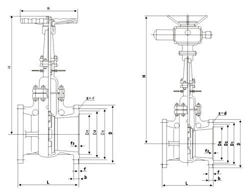
1、本產品的閥蓋填料室具有水密封結構,當接口通入壓力0.6~1MPa的水時,可使系統與大氣隔離,保證系統具有良好的氣密封。
2、DS/Z型系列采用雙閘板雙向彈性密封,啟閉靈活、迅速、密封可靠。
3、產品結構簡單、緊湊合理、檢修方便、使用壽命長。
4、在管路上作啟閉裝置用,必須處于全開或全閉狀態,不得用于調節流量。
5、水封閘閥、水封電動閘閥連接方式有法蘭和焊接兩種,驅動方式為手動和電動。
6、Ds系列水封閥門適用于公稱壓力≤10.OMPa,工作溫度≤425℃,工作介質為水、蒸汽、油品和非氣體的管路上作啟閉裝置用,尤其適用于火電廠汽機真空冷凝系統。
水封閘閥、水封電動閘閥產品詳細介紹 |
公稱通徑
DN/mm
Nominal
diameter |
L |
D |
D1 |
D2 |
D6 |
f |
b |
f2 |
Z-φd |
手動 Manuall |
電動 Electricall |
H |
Do |
重量/kg
Weight |
H |
電動裝置
Electric device |
重量/kg
Weight |
50 |
250 |
160 |
125 |
100 |
88 |
3 |
20 |
4 |
4-φ18 |
330 |
300 |
27 |
620 |
DZWl0 |
55 |
65 |
280 |
180 |
145 |
120 |
110 |
3 |
22 |
4 |
8-φ18 |
435 |
300 |
38 |
714 |
DZWlO |
65 |
80 |
310 |
195 |
160 |
135 |
121 |
3 |
22 |
4 |
8-φ侶 |
491 |
350 |
42 |
765 |
DZWl5 |
70 |
100 |
350 |
230 |
190 |
160 |
150 |
3 |
24 |
4.5 |
8-φ23 |
573 |
350 |
57 |
840 |
DZW201I |
86 |
125 |
400 |
270 |
220 |
188 |
176 |
3 |
28 |
4 5 |
8-φ25 |
582 |
400 |
91 |
852 |
DZW201I |
120 |
150 |
450 |
300 |
250 |
218 |
204 |
3 |
30 |
4 5 |
8-φ25 |
605 |
400 |
110 |
875 |
DZW30 |
138 |
200 |
550 |
375 |
320 |
282 |
260 |
3 |
38 |
4.5 |
12-φ30 |
739 |
450 |
169 |
1015 |
DZW30 |
200 |
250 |
650 |
445 |
385 |
345 |
313 |
3 |
42 |
4.5 |
12-φ34 |
862 |
550 |
207 |
1225 |
DZW40 |
298 |
300 |
750 |
510 |
450 |
408 |
364 |
4 |
46 |
4.5 |
16-φ34 |
990 |
650 |
266 |
1371 |
DZW60 |
383 |
350 |
850 |
570 |
510 |
465 |
422 |
4 |
52 |
5 |
16-φ34 |
1139 |
750 |
513 |
1507 |
DZW90l |
604 |
400 |
950 |
655 |
585 |
535 |
474 |
4 |
58 |
5 |
16-φ41 |
1523 |
850 |
627 |
1912 |
DZWl20 |
866 |
■主要外形尺寸及連接尺寸 Main dimensiors and weight
公稱通徑
DN/mm
Nominal
diameter |
L |
D |
D1 |
D2 |
D6 |
f |
b |
f2 |
Z-φd |
手動 Manuall |
電動 Electricall |
H |
Do |
重量/kg
Weight |
H |
電動裝置
Electric device |
重量/kg
Weight |
DS/Z44H-64 DS/Z44Y-64I DS/Z944H-64 DS/Z944Y-64I
DS/Z41H-64 DS/Z41Y-64I DS/Z941H-64 DS/Z941Y-64I |
50 |
250 |
175 |
135 |
105 |
88 |
3 |
26 |
4 |
4-φ23 |
337 |
300 |
30 |
622 |
DZWl0 |
58 |
65 |
280 |
200 |
160 |
130 |
110 |
3 |
28 |
4 |
8-φ23 |
441 |
300 |
41 |
714 |
DZW15 |
69 |
80 |
310 |
210 |
170 |
140 |
121 |
3 |
30 |
4 |
8-φ23 |
496 |
350 |
45 |
765 |
DZW20I |
73 |
100 |
350 |
250 |
200 |
168 |
150 |
3 |
32 |
4.5 |
8-φ25 |
578 |
400 |
62 |
840 |
DZW20l |
90 |
125 |
400 |
295 |
240 |
202 |
176 |
3 |
36 |
4.5 |
8-φ30 |
588 |
400 |
97 |
852 |
DZW30 |
124 |
150 |
450 |
340 |
280 |
240 |
204 |
3 |
38 |
4.5 |
8-φ34 |
610 |
450 |
115 |
875 |
DZW30 |
142 |
200 |
550 |
405 |
345 |
300 |
260 |
3 |
44 |
4.5 |
12-φ34 |
744 |
550 |
172 |
1195 |
DZW45 |
276 |
250 |
650 |
470 |
400 |
352 |
313 |
3 |
48 |
4.5 |
12-φ41 |
867 |
650 |
211 |
1225 |
DZW60 |
317 |
300 |
750 |
530 |
460 |
412 |
364 |
4 |
54 |
4.5 |
16-φ41 |
996 |
750 |
271 |
1393 |
DZW90 |
399 |
350 |
850 |
595 |
525 |
475 |
422 |
4 |
60 |
5 |
16-φ41 |
1142 |
850 |
518 |
1507 |
DZWl20I |
647 |
400 |
950 |
670 |
585 |
525 |
474 |
4 |
66 |
5 |
16-φ48 |
1537 |
900 |
633 |
2075 |
DZWl80 |
882 |
DS/Z44H-100 DS/Z44Y-100I DS/Z944H-100 DS/Z944Y-100I
DS/Z41H-100 DS/Z41Y-100I DS/Z941H-100 DS/Z941Y-100I |
50 |
250 |
195 |
145 |
112 |
88 |
3 |
28 |
4 |
4-φ25 |
337 |
300 |
34 |
622 |
DZWl0 |
62 |
65 |
280 |
220 |
170 |
138 |
110 |
3 |
32 |
4 |
8-φ25 |
441 |
300 |
46 |
714 |
DZWl5 |
74 |
80 |
310 |
230 |
180 |
148 |
121 |
3 |
34 |
4 |
8-φ25 |
496 |
350 |
50 |
765 |
DZW20I |
78 |
100 |
350 |
265 |
210 |
172 |
150 |
3 |
38 |
4.5 |
8-φ3O |
578 |
400 |
67 |
840 |
DZW30I |
95 |
125 |
400 |
310 |
250 |
210 |
176 |
3 |
42 |
4.5 |
8-φ34 |
588 |
400 |
102 |
852 |
DZW30 |
129 |
150 |
450 |
350 |
290 |
250 |
204 |
3 |
46 |
4.5 |
12-φ34 |
610 |
450 |
121 |
875 |
DZW45 |
221 |
200 |
550 |
430 |
360 |
312 |
260 |
3 |
54 |
4.5 |
12-φ41 |
744 |
550 |
178 |
1195 |
DZW60 |
285 |
250 |
650 |
500 |
430 |
382 |
313 |
3 |
60 |
4 5 |
12-φ41 |
867 |
650 |
217 |
1225 |
DZW90l |
345 |
300 |
750 |
585 |
500 |
442 |
364 |
4 |
70 |
4.5 |
16-φ48 |
996 |
750 |
278 |
1393 |
DZWl20I |
409 |
350 |
850 |
655 |
560 |
498 |
422 |
4 |
76 |
5 |
6-φ54 |
1142 |
850 |
524 |
1507 |
DZWl80 |
773 |
400 |
950 |
715 |
620 |
558 |
474 |
4 |
80 |
5 |
6-φ54 |
1537 |
950 |
640 |
2075 |
DZW250 |
892 |
|
